
相信不少人都对“奇葩”户型并不陌生,这类户型大多因建筑外观而形成,然而对于装修设计而言,却存在诸多限制。像是结构难以合理改动、空间面积利用率低、动线杂乱无章等问题屡见不鲜。那么面对这样的户型,该如何进行布局设计呢?
实际上,只要明确自身对空间的需求,哪怕是再奇特的户型,通过精心设计,都能提升居住的舒适性与实用性。就如下面这套65㎡的案例,堪称“装修模板”,全屋毫无浪费之处,空间功能定位也十分清晰。

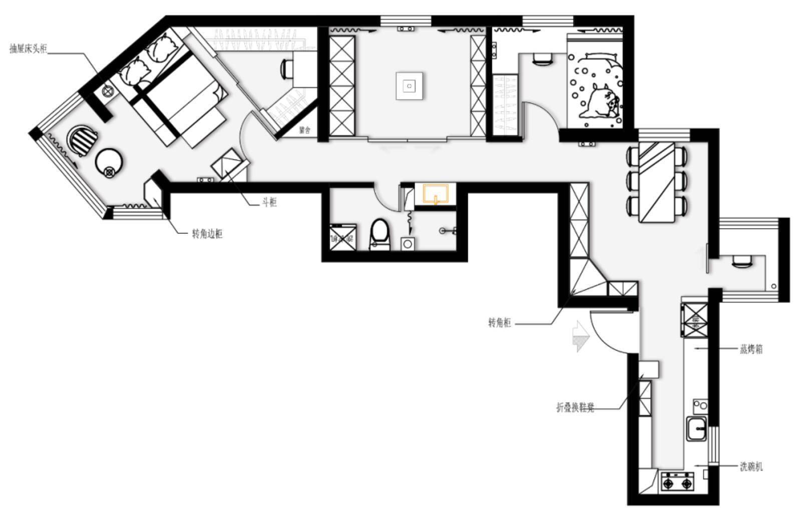
本案位于北京,屋主是一对年轻夫妻。原户型结构颇为“奇葩”,但对他们来说,这仍是一个幸福的小窝。虽说户型不大,可空间该有的功能性却一样不能少。例如空间基调要以日式复古为主,主卧需配备衣帽间,阳台不想用作家政区,还要有充足的储物空间等等。

结合屋主的需求,空间布局如下:
1、将餐厅旁的小阳台改造成独立办公区,实现生活与办公互不干扰。
2、把中间的大房间改造成客厅,满足日常待客与活动的需求。
3、拆除卫生间内的隔墙,并将台盆柜独立设置在外,让内部有足够空间放置洗衣机,从而释放南阳台的面积。
4、采用异形结构设计衣帽间,使主卧室空间更加规整。

一进门便是厨房,位置虽有些尴尬,但空间利用丝毫不能马虎。于是,直接将橱柜延伸,并嵌入冰箱,不仅增加了厨房的收纳与操作面积,冰箱还起到了入户端景的作用。而入户的收纳需求,则通过旁边的成品鞋柜解决。

为充分利用厨房面积,并预留舒适的转身空间,在右边设计了一组深度30公分的橱柜,同时增加高柜设计。如此一来,既大幅提升了空间的储物能力,又增强了空间的整洁度。

穿过厨房便是餐厅,墙面留白,地面铺设拼花地板,搭配一些原木家具,不仅营造出简约、利落的氛围,还彰显出温润、质朴的气息。为减少突兀感,侧面的餐边柜采用成品定制的方式,做三角柜结构处理。

1.6米长的原木餐桌,不仅能满足六口人的用餐需求,还兼具手工、办公台的功能。而部分吊顶采用弧形设计,在提升空间美感的同时,还能遮挡新风管道。毕竟,小户型的通风环境优化至关重要。


考虑到家中主过道较长,顶面采用拱形设计,并通过灯光点缀,既间接拉伸了层高,又增强了空间的仪式感。

取消中间的卧室并改造成客厅,空间功能性瞬间得以完善。电视墙采用隔层架设计,完美融合收纳与展示功能。同时,将投影幕布暗藏在顶部,使用更加灵活。

沙发墙留白,再以壁灯点缀,既丰富了空间,又增添了几分趣味性。定制的沙发榻,将悠闲、慵懒的生活姿态展现得淋漓尽致。

卫生间拆除内部无用的墙体后,将台盆柜移出。这样不仅提高了空间使用率,还使内部能够放置洗衣机和烘干机,从而释放了南阳台的面积。


步入主卧,当旁边的衣帽间采用异形结构规划后,空间变得规整许多。床头墙面刷上米黄色乳胶漆,与旁边的白墙形成层次对比,加深了空间的氛围感。
南阳台门洞扩大后,同样运用了弧形元素。这不仅使空间保持统一、呼应,还让空间更加精致柔和。当然,最重要的是为屋主打造出一块惬意的休闲区。


提前规划的儿童房采用上下床设计,即便日后有二胎,或者父母前来小住,也能满足需求。不过由于暂时用不到这个房间,所以布局上仅配置了基本家具,方便后期二次调整。
纵观整个案例,最令人惊喜的是,在户型奇葩的情况下,不仅空间面积得到充分利用,还丝毫没有出现想象中的拥挤感。因此,建议大家在装修前,充分考虑自身需求。因为只有明确自己所需,新房装修才会更契合居住方式。
#户型设计 #装修案例 #空间利用 #日式复古风格我要配资-配资炒股开户-配资平台查询网-杠杆配资公司提示:文章来自网络,不代表本站观点。